Temperature
| Setting temperature range | +20 to +80 °C |
|---|---|
| Working temperature range | at least 5 above ambient temperature to +80 °C |
| Setting accuracy temperature | 0.1 °C |
| Temperature sensor | 2 Pt100 sensors DIN Class A in 4-wire-circuit for mutual monitoring, taking over functions in case of an error |
Control technology
| ControlCOCKPIT | TwinDISPLAY. Adaptive multifunctional digital PID-microprocessor controller with 2 high-definition TFT-colour displays. |
|---|---|
| Timer | Digital backwards counter with target time setting, adjustable from 1 minute to 99 days |
| Function HeatBALANCE | adapting the distribution of the heating performance of the upper and lower heating circuit from -50 % to +50 % |
| Function SetpointWAIT | the process time does not start until the set temperature is reached |
| Calibration | three freely selectable temperature values |
| adjustable parameters | temperature (Celsius or Fahrenheit), air flap position, programme time, time zones, summertime/wintertime |
| Sterilisation | fixed sterilisation programme (4 hours/160°C) for sterilisation of working chamber, not for sterilising the load |
Ventilation
| Convection | natural convection |
|---|---|
| Fresh air | Admixture of pre-heated fresh air by electronically adjustable air flap |
| Vent | vent connection with restrictor flap |
Communication
| Documentation | programme stored in case of power failure |
|---|---|
| Programming | AtmoCONTROL software on a USB stick for programming, managing and transferring programmes via Ethernet interface or USB port |
Safety
| Temperature control | mechanical temperature limiter TB, protection class 1 according to DIN 12880 to switch off the heating approx. 20°C above nominal temperature |
|---|---|
| Temperature control | overtemperature monitor TWW, protection class 3.1 or adjustable temperature limiter TWB, protection class 2, selectable on display |
| AutoSAFETY | additionally integrated over- and undertemperature monitor “ASF”, automatically following the setpoint value at a preset tolerance range, alarm in case of over- or undertemperature, heating is switched off in case of overtemperature |
| Autodiagnostic system | for fault analysis |
| Alarm | visual and acoustic |
Standard equipment
| Works calibration certificate | incl. works calibration certificate for +37°C |
|---|---|
| Door | inner glass doors |
| Door | fully insulated stainless steel doors with 2-point locking (compression door lock) |
| Internals | 2 stainless steel grid(s), electropolished |
Stainless steel interior
| Interior | easy-to-clean interior,made of stainless steel, reinforced by deep drawn ribbing with integrated and protected large-area heating on four sides |
|---|---|
| Volume | 449 l |
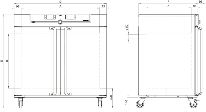
| Dimensions | w(A) x h(B) x d(C): 1040 x 720 x 600 mm |
| Max. number of internals | 8 |
| Max. loading of chamber | 300 kg |
| Max. loading per internal | 30 kg |
Textured stainless steel casing
| Dimensions | w(D) x h(E) x d(F): 1224 x 1247 x 784 mm (d +56mm door handle) |
|---|---|
| Installation | on lockable castors |
| Housing | rear zinc-plated steel |
Electrical data
| Voltage Electrical load | 230 V, 50/60 Hz approx. 1800 W |
|---|---|
| Voltage Electrical load | 115 V, 50/60 Hz approx. 1500 W |
Ambient conditions
| Set Up | The distance between the wall and the rear of the appliance must be at least 15 cm. The clearance from the ceiling must not be less than 20 cm and the side clearance from walls or nearby appliances must not be less than 5 cm. |
|---|---|
| Altitude of installation | max. 2,000 m above sea level |
| Ambient temperature | +5 °C to +40 °C |
| Humidity rh | max. 80 %, non-condensing |
| Overvoltage category | II |
| Pollution degree | 2 |
Packing/shipping data
| Transport information | The appliances must be transported upright |
|---|---|
| Customs tariff number | 8419 8998 |
| Country of origin | Federal Republic of Germany |
| WEEE-Reg.-No. | DE 66812464 |
| Dimensions approx incl. carton | w x h x d: 1330 x 1440 x 1050 mm |
| Net weight | approx. 161 kg |
| Gross weight carton | approx. 227 kg |
Standard units are safety-approved and bear the test marks

















